DETAIL 部屋詳細
有野台住宅7号棟
空室
住所
〒651-1321
神戸市北区有野台2丁目9番
GoogleMapへ
最寄駅
神鉄三田線 五社 バス6分〜切畑公園前 徒歩3分
神鉄三田線 岡場 バス5分〜切畑公園前 徒歩3分
物件説明
自分好みの暮らしを手に入れるための
DIY・リノベーションができる公社賃貸住宅
『あリノベ賃貸』開始しました!!
全室南向きで陽当り良好。
※定期建物賃貸借契約となります
※火災保険へのご加入をお願いします
- 築年数 / 竣工年月
- 築53年 /1972年09月 竣工
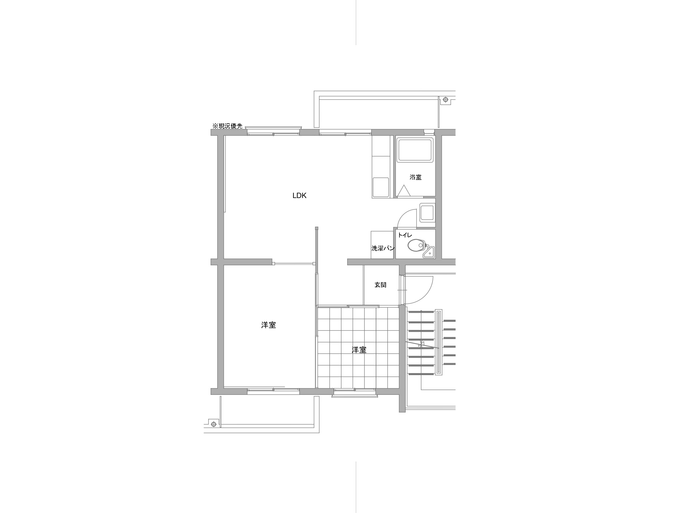
- 間取り / 面積
- 1LDK 〜 3DK /43.74㎡ 〜 45.86㎡
- 地上階
- 5階
- 駐車場台数
- 249台
- 小学校区
- 神戸市立ありの台小学校
- 空室数 / 総戸数
- 空室7戸 / 総戸数288戸
- 物件設備
-
CATV / 管理人 / 駐輪場 / 屋外駐車場
部屋情報
7-408
ネット申込み・お問い合わせ
-
リビング
-
キッチン
-
洋室
-
洋室
-
カフェニッチ
-
洗面所

再検索する
モニター付きインターホン
トイレ・お風呂別
