DETAIL 部屋詳細
入江
空室
住所
〒652-0822
神戸市兵庫区西出町1丁目19番1号
GoogleMapへ
最寄駅
JR東海道本線(神戸線) 神戸 徒歩11分
神戸高速東西線 新開地 バス5分〜七宮町 徒歩2分
物件説明
ハーバーランドへ徒歩圏内!単身からファミリーまで入居可!
※火災保険へのご加入をお願いします
- 築年数 / 竣工年月
- 築34年 /1991年03月 竣工
- 間取り / 面積
- 1DK 〜 3DK /36.55㎡ 〜 68.13㎡
- 地上階
- 14階
- 駐車場台数
- 45台
- 小学校区
- 神戸市立湊小学校
- 空室数 / 総戸数
- 空室4戸 / 総戸数130戸
- 物件設備
-
CATV / 駐輪場 / 屋外駐車場
エレベータ
駐車場設備
部屋情報
806
- 家賃 / 共益費
- ¥94,500 /¥2,800
- 敷金
- ¥94,500
- 部屋階層
- 8階
- 修繕状況
-
修繕完了
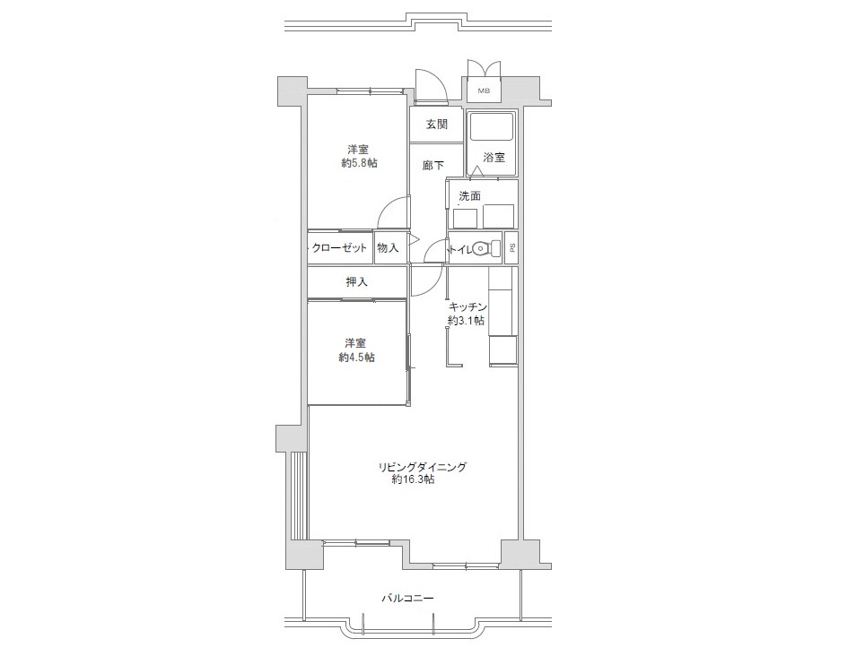
- 間取り / タイプ
- 2LDK /C1X
- 面積 / バルコニー面積
- 67.41㎡ /11.27㎡
- 部屋設備
-
モニター付きインターホン
ガス給湯器 / 三ヶ所給湯 / 室内洗濯機置場 / 手すり / 照明器具 - 利用可能支援
-
- リノベーション住戸
ネット申込み・お問い合わせ
-
リビングダイニング
-
キッチン
-
洋室
-
洋室
-
洗面所
-
浴室

再検索する
