DETAIL 部屋詳細
ルミエール神戸
商談中
住所
〒652-0811
神戸市兵庫区新開地5丁目2番29
GoogleMapへ
最寄駅
JR東海道本線(神戸線) 神戸 徒歩7分
神戸高速東西線 新開地 徒歩5分
物件説明
西へ東へ通勤便利!
※火災保険へのご加入をお願いします
- 築年数 / 竣工年月
- 築30年 /1995年11月 竣工
- 間取り / 面積
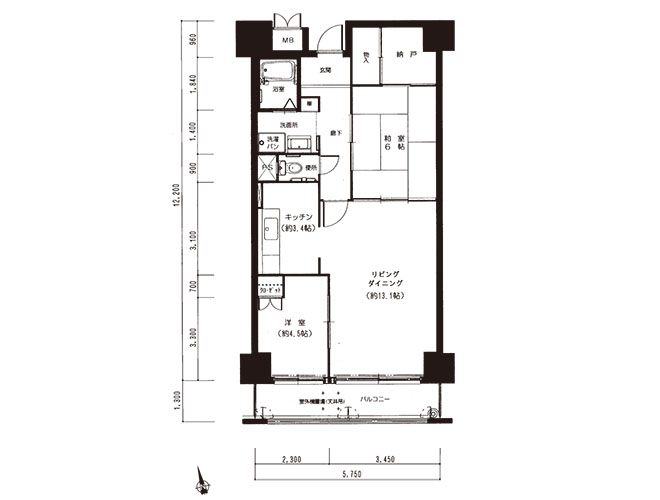
- 2LDK+フリールーム 〜 3LDK /66.06㎡ 〜 71.9㎡
- 地上階
- 0階
- 駐車場台数
- 64台
- 小学校区
- 神戸市立湊小学校
- 空室数 / 総戸数
- 空室1戸 / 総戸数88戸
- 物件設備
-
CATV / 管理人 / 屋内駐車場 / 駐輪場
エレベータ
オートロック
宅配ボックス
駐車場設備
部屋情報
905

再検索する
モニター付きインターホン
システムキッチン
トイレ・お風呂別
