DETAIL 部屋詳細
学が丘カレッジハイツ
空室
支援制度:
住所
〒655-0004
神戸市垂水区学が丘4丁目25-12
GoogleMapへ
最寄駅
神戸市営地下鉄西神線 学園都市 バス6分〜学が丘 徒歩1分
物件説明
管理人ありで安心。光インターネット&WiFi無料!
※学生または、39歳以下の世帯が入居できる若年世帯向け賃貸マンションです
※定期建物賃貸借契約となります
※火災保険へのご加入をお願いします
- 築年数 / 竣工年月
- 築32年 /1993年03月 竣工
- 間取り / 面積
- 1K 〜 2LDK /24.87㎡ 〜 60㎡
- 地上階
- 8階
- 駐車場台数
- 1台
- 小学校区
- ー
- 空室数 / 総戸数
- 空室12戸 / 総戸数93戸
- 物件設備
-
CATV / 管理人 / 駐輪場
エレベータ
オートロック
宅配ボックス
ネット無料
部屋情報
701
- 家賃 / 共益費
- ¥42,000 /¥4,000
- 敷金
- ¥42,000
- 部屋階層
- 7階
- 修繕状況
-
修繕中(2026/01/13 完了予定)予定日は状況により変更する場合がございます。
- 間取り / タイプ
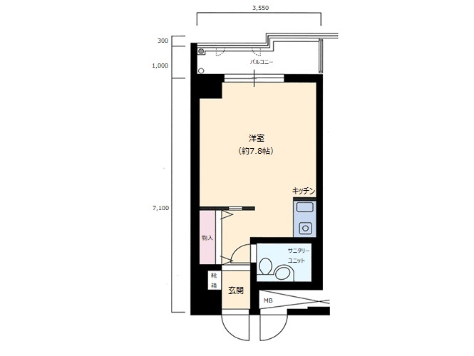
- 1K /A南反
- 面積 / バルコニー面積
- 25.2㎡ /4㎡
- 部屋設備
-
モニター付きインターホン
エアコン
ガス給湯器 / 三ヶ所給湯 / 室内洗濯機置場 / 照明器具 - 利用可能支援
-
- はたらく
ネット申込み・お問い合わせ
-
洋室
-
洋室
-
キッチン・室内洗濯機置き場
-
キッチン
-
クローゼット
-
ユニットバス

再検索する
