DETAIL 部屋詳細
神戸アスタカレッジハイツ
商談中
支援制度:
住所
〒653-0038
神戸市長田区若松町3丁目3-1
GoogleMapへ
最寄駅
JR山陽本線(神戸線) 新長田 徒歩3分
神戸市営地下鉄西神線 新長田 徒歩3分
物件説明
駅徒歩3分の駅近物件!人気のオール電化・セパレート!
※学生または、39歳以下の単身者の方が入居できる若年世帯向け賃貸マンションです
※定期建物賃貸借契約となります
※火災保険へのご加入をお願いします
- 築年数 / 竣工年月
- 築22年 /2004年03月 竣工
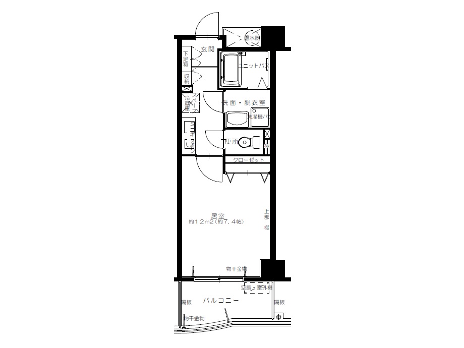
- 間取り / 面積
- 1K 〜 1K+ロフト /26.31㎡ 〜 26.33㎡
- 地上階
- 0階
- 駐車場台数
- 0台
- 小学校区
- ー
- 空室数 / 総戸数
- 空室3戸 / 総戸数84戸
- 物件設備
-
CATV / オール電化 / 駐輪場
エレベータ
オートロック
宅配ボックス
部屋情報
601
- 家賃 / 共益費
- ¥58,000 /¥4,000
- 敷金
- ¥58,000
- 部屋階層
- 6階
- 修繕状況
-
修繕中(2026/05/21 完了予定)予定日は状況により変更する場合がございます。
- 間取り / タイプ
- 1K /A3反
- 面積 / バルコニー面積
- 26.33㎡ /4.33㎡
- 部屋設備
-
トイレ・お風呂別
エアコン
電気温水器 / 三ヶ所給湯 / 室内洗濯機置場 / 手すり / 照明器具 - 利用可能支援
-
- はたらく
ネット申込み・お問い合わせ
-
洋室
-
洋室
-
キッチン
-
廊下
-
浴室
-
洗面所

再検索する
