DETAIL 部屋詳細
井吹西シティコート
商談中
住所
〒651-2243
神戸市西区井吹台西町1丁目3 井吹西シティコート
GoogleMapへ
最寄駅
神戸市営地下鉄西神線 西神南 徒歩4分
物件説明
生活至便!駅・スーパー・公園・ホームセンターが全て徒歩5分圏内。
※火災保険へのご加入をお願いします
- 築年数 / 竣工年月
- 築29年 /1996年11月 竣工
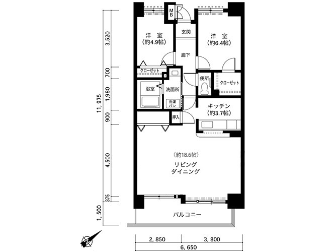
- 間取り / 面積
- 2LDK 〜 3LDK /77.03㎡ 〜 80.06㎡
- 地上階
- 14階
- 駐車場台数
- 132台
- 小学校区
- 神戸市立井吹西小学校
- 空室数 / 総戸数
- 空室1戸 / 総戸数165戸
- 物件設備
-
屋内駐車場 / 駐輪場
エレベータ
オートロック
宅配ボックス
駐車場設備
部屋情報
1408

再検索する
システムキッチン
トイレ・お風呂別
