DETAIL 部屋詳細
学園シティコート
商談中
住所
〒651-2103
神戸市西区学園西町1丁目1-1
GoogleMapへ
最寄駅
神戸市営地下鉄西神線 学園都市 徒歩2分
物件説明
駅徒歩1分の駅近物件!通勤・通学・買い物が充実の好立地
※火災保険へのご加入をお願いします
- 築年数 / 竣工年月
- 築27年 /1999年03月 竣工
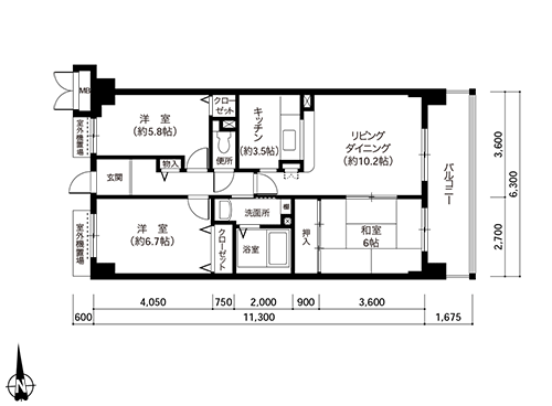
- 間取り / 面積
- 2LDK 〜 4LDK /62.23㎡ 〜 83.74㎡
- 地上階
- 0階
- 駐車場台数
- 152台
- 小学校区
- 神戸市立小寺小学校
- 空室数 / 総戸数
- 空室1戸 / 総戸数200戸
- 物件設備
-
トランクルーム / 屋内駐車場 / 駐輪場 / バイク置き場
エレベータ
オートロック
駐車場設備
部屋情報
1309

再検索する
モニター付きインターホン
システムキッチン
トイレ・お風呂別
