DETAIL 部屋詳細
井吹東シティコート17号棟
商談中
住所
〒651-2242
神戸市西区井吹台東町4丁目18
GoogleMapへ
最寄駅
神戸市営地下鉄西神線 西神南 徒歩17分
物件説明
緑豊かで子育てにやさしい住環境。スーパー目の前で買い物便利!
※火災保険へのご加入をお願いします
- 築年数 / 竣工年月
- 築30年 /1995年12月 竣工
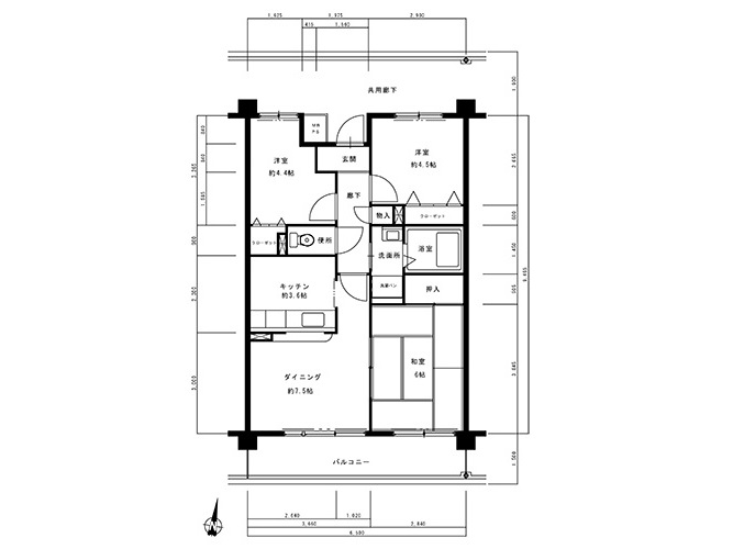
- 間取り / 面積
- 2LDK 〜 3LDK /60.45㎡ 〜 80.06㎡
- 地上階
- 3階
- 駐車場台数
- 338台
- 小学校区
- 神戸市立井吹東小学校
- 空室数 / 総戸数
- 空室2戸 / 総戸数397戸
- 物件設備
-
駐輪場 / 屋外駐車場
部屋情報
17-306

再検索する
トイレ・お風呂別
