DETAIL 部屋詳細
ファミールハイツ
空室
住所
〒655-0882
神戸市垂水区乙木3丁目1番30
GoogleMapへ
最寄駅
JR山陽本線(神戸線) 垂水 バス10分〜乙木1丁目 徒歩3分
物件説明
バス停・スーパー・小学校へ徒歩3分以内!買い物便利!
※火災保険へのご加入をお願いします
- 築年数 / 竣工年月
- 築31年 /1994年10月 竣工
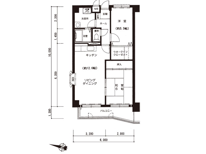
- 間取り / 面積
- 2LDK 〜 3LDK /59.68㎡ 〜 65.83㎡
- 地上階
- 5階
- 駐車場台数
- 13台
- 小学校区
- 神戸市立福田小学校
- 空室数 / 総戸数
- 空室1戸 / 総戸数16戸
- 物件設備
-
CATV / 屋内駐車場 / 駐輪場 / 屋外駐車場
エレベータ
オートロック
部屋情報
204

再検索する
モニター付きインターホン
トイレ・お風呂別
