DETAIL 部屋詳細
ウエストコ-ト8番街2番館
商談中
住所
〒658-0032
神戸市東灘区向洋町中7丁目2-3
GoogleMapへ
最寄駅
神戸新交通六甲アイランド線 アイランドセンター 徒歩7分
物件説明
六甲アイランドの美しい街並み。子育てにやさしい住環境!
※火災保険へのご加入をお願いします
- 築年数 / 竣工年月
- 築28年 /1997年07月 竣工
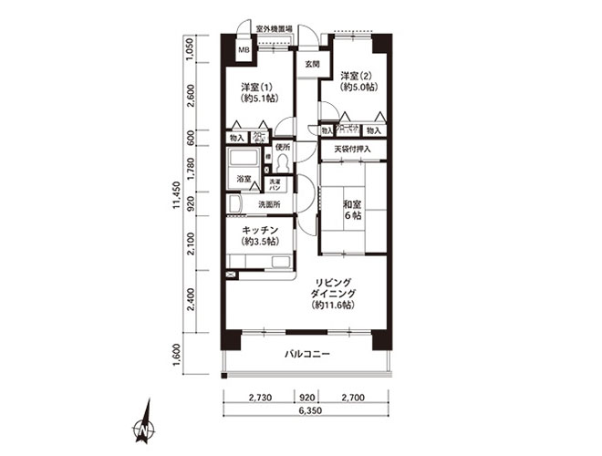
- 間取り / 面積
- 2LDK 〜 4LDK /62.92㎡ 〜 82.36㎡
- 地上階
- 11階
- 駐車場台数
- 208台
- 小学校区
- 神戸市立向洋小学校
- 空室数 / 総戸数
- 空室2戸 / 総戸数260戸
- 物件設備
-
管理人 / 屋内駐車場 / 駐輪場
エレベータ
オートロック
宅配ボックス
駐車場設備
部屋情報
2-312

再検索する
モニター付きインターホン
システムキッチン
トイレ・お風呂別
